Aménagement d’un hangar à Marseille (13007)
Loft pour artiste
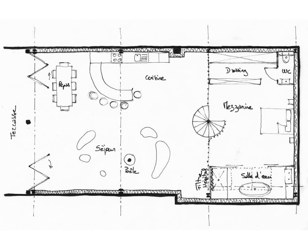
Aménagement de l’espace intérieur du hangar d’un ancien garage pour l’artiste Claude Como avec création de mezzanines et d’un escalier hélicoïdal en acier.
Le projet concerne également la rénovation de la couverture du hangar. Des lucarnes de toit seront créées pour assurer des apports complémentaires de lumière naturelle et d’air frais aux volumes intérieurs.
Mise en place d’un poêle suspendu Agorafocus. Création d’un sol béton avec finition quartz poli à l’hélicoptère et complété d’un hydro-oléfuge pour prévenir l’apparition de tâches.
La charpente métallique intégralement conservée est traitée contre le feu ainsi que la corrosion. Une partie de la couverture sera retirée afin de laisser place à un jardin intérieur/extérieur paysagé.







