Rénovation et extension d’une maison à Courbevoie (92400)
Restructuration et Aménagement
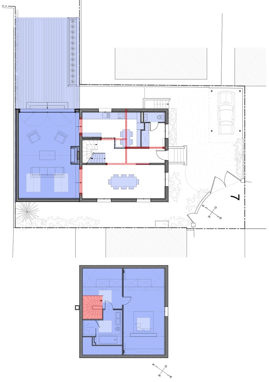
Extension en rez de chaussée dans le prolongement des murs existants et création d’une grande terrasse bois sur plots et lambourdes.
Ouvertures structurelles et redistribution intérieure complète du niveau de vie. Sol en terrazzo noir et blanc et chêne huilé.
Création d’un escalier balancé jusqu’au niveau des combles aménagées avec structure béton, habillage chêne et garde-corps acier.
Création d’une trémie d’escalier, agrandissement des velux et alignement avec les fenêtres des façades.
Aménagement du niveau sous forme de « suite parentale » et réalisation de rangements sur mesure et tête de lit en mdf à peindre.











